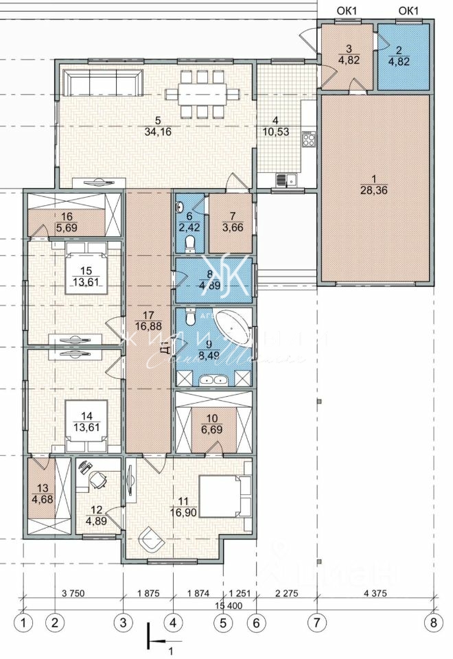
Дом в Ростовская область, Цимлянск Красноармейская ул., 158 (213 м²)

Обзор
Стоимость
10 850 000
Тип строенияДом
Площадь, кв.м.213
Этажность1
Материал стен Экспериментальные материалы
Адрес
Населенный пунктЦимлянск
Улицаулица Красноармейская
Дом в Ростовская область, Цимлянск Красноармейская ул., 158 (213 м²)

Продаётся уютный дом , для вашей семьи в тихом городке! Общая площадь 213 кв.м. Есть все необходимое для комфортной жизни. 3 спальные комнаты , в каждой комнате предусмотрена гардеробная. Большая гостиная с панорамными окнами, совмещения с кухней. Большая ванная комната. Прачечная комната. Гостевой туалет. Вход в гараж из дома, что очень удобно в зимний период. Проведены все коммуникации. Продается частично с мебелью.

Расположение

Важно! На карте не всегда указано точное местоположение. Более точную информацию можно узнать у менеджера, разместившего объект